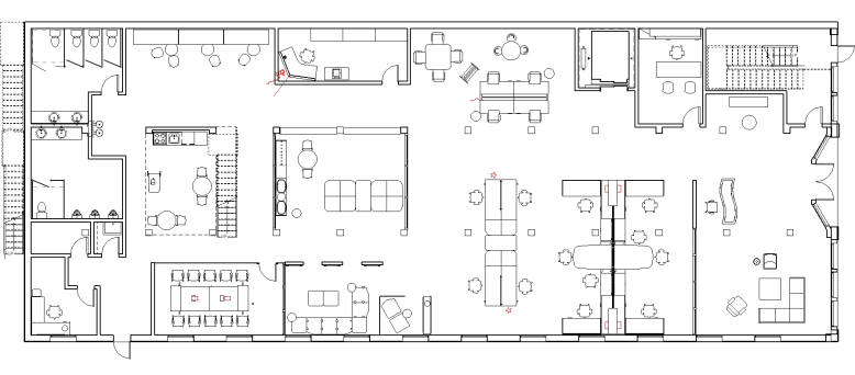
The sustainable, innovative design of WFS functions as a co-working office, where the employees work in a natural environment that inspires collaboration and social interaction. The design ensures the physical and psychological well-being of employees through adaptable workspaces and biophilic design.
- Graphic Design Office Floor Plan Level 1
- Graphic Design Office Floor Plan Level 2
- Reflected Ceiling Plan Level 1
- Reflected Ceiling Plan Level 2
Spring 2018
The design includes open studio areas with efficient space planning and well-organized circulation.

The workspaces incorporate Herman Miller’s adaptable and adjustable furniture systems to create uncrowded, productive workspaces that give employees a level of personal space and the opportunity to concentrate, while still encouraging social interaction and collaboration.

The office integrates biophilic design elements such as natural materials and finishes, plants, natural light, and views of nature to enhance productivity and the well-being of employees.





