Skip to content
Thoughtful Design
Menu
Home
Design
University of Oregon
Louisiana State University
Internship
Community
Artwork
About
Blog
Contact
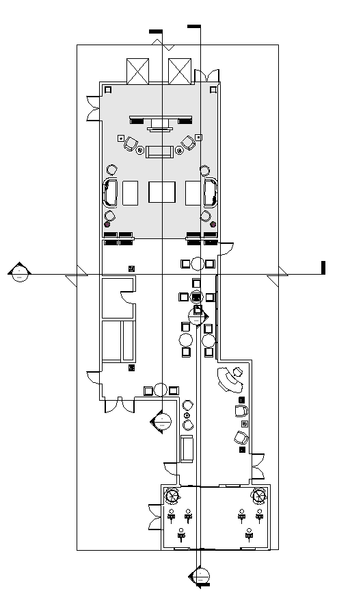
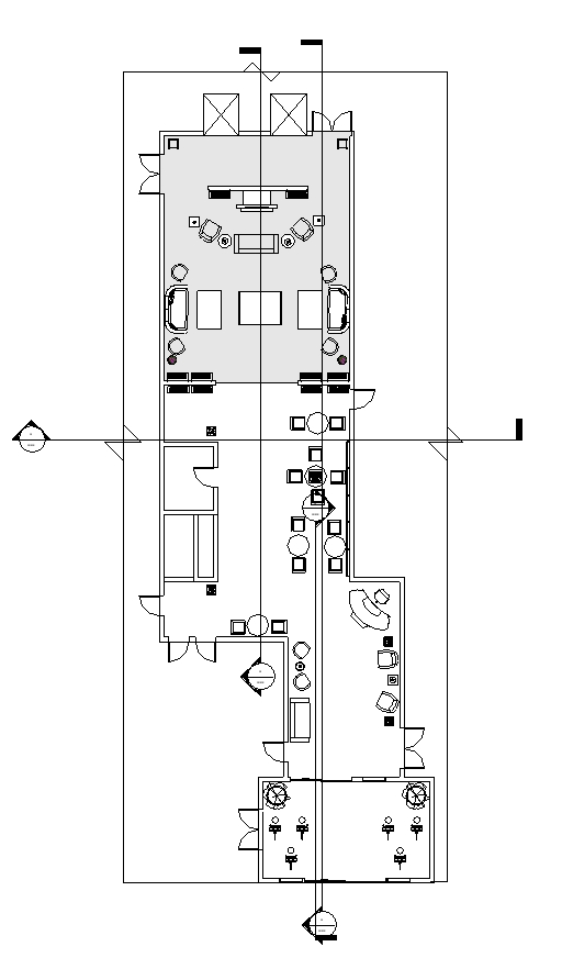
St. James Place Master Floor Plan
Published
February 8, 2019
at
512 × 892
Leave a comment
Cancel reply
Δ
Comment
Thoughtful Design
Sign up
Log in
Copy shortlink
Report this content
Manage subscriptions